Este site utiliza cookies para permitir a mudança de língua e o armazenamento dos seus imóveis favoritos. Ao utilizar este site, concorda que o mesmo utilize cookies.

Escritório espaçoso e luminoso no centre de Lisboa

395.000€



Referência

AMAB2/25

Natureza

Venda

Tipo de Imóvel

Escritório

Tipologia

Não se aplica

Estado

Excelente

Certificado energético

C


Distrito

Lisboa

Concelho

Lisboa

Freguesia

Penha de França

Código Postal

1170


Área Útil

156.85 m2

Área Bruta

176 m2

Área de Terreno

0 m2

Partilhar



Contactar Imobiliária

*Preenchimento obrigatório
Ao clicar em 'Enviar', declara que aceita a nossa Política de Privacidade.
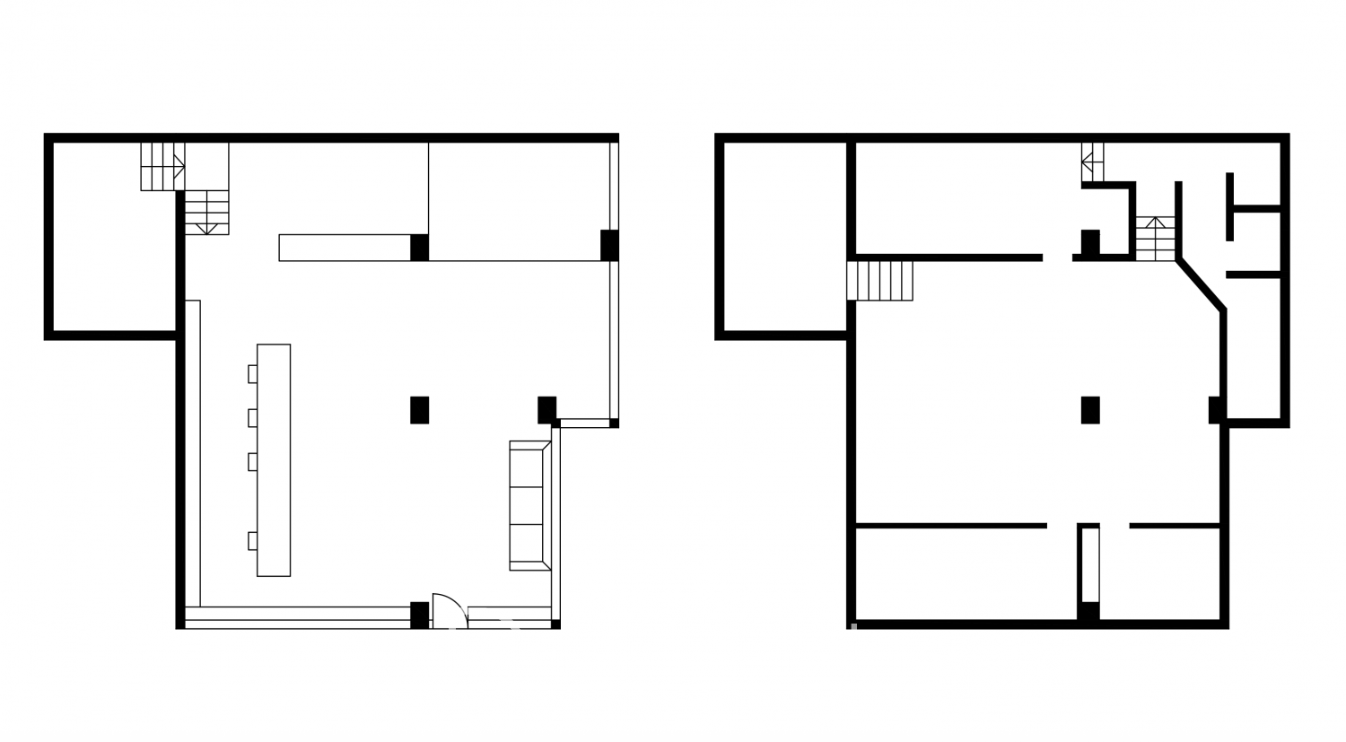
Escritório muito espaçoso, com 176 m² de área bruta, idealmente localizado no centro de Lisboa, na Penha de França, junto aos principais eixos rodoviários.
Trata-se de um rés do chão envolvido por montras envidraçadas, composto por uma ampla zona de trabalho com espaço para várias secretárias, duas salas de reuniões fechadas em vidro e uma cave de igual dimensão. Na cave encontramos uma sala ampla, uma zona de refeição com cozinha totalmente equipada com eletrodomésticos Bosch, dois quartos de apoio com roupeiros embutidos e janelas altas com luz natural, duas casas de banho (masculina e feminina), mais uma casa de banho completa com duche e várias zonas de arrumação. 
O imóvel está inserido num prédio de placa em muito bom estado de conservação.

Este espaço destaca-se pela excelente luminosidade natural e pelo ambiente acolhedor moderno e funcional, ideal para um dia de trabalho confortável, situado numa zona calma e bem servida com comércio e serviços, a poucos passos de escolas, supermercados, restaurantes, farmácias, bancos e com excelentes acessos a transportes públicos, este imóvel oferece tudo o que precisa, seja para uso profissional ou investimento.

Pela sua versatilidade, é ideal para funcionar como escritório, armazém ou até restaurante, uma vez que anteriormente já desempenhou essa função e poderá, potencialmente, voltar a ter esse uso.

Localização privilegiada:
- 30m da paragem de Autocarro do 706
- 250m do supermercado Lidl Penha de França
- 250m da Biblioteca da Penha de França
- 350m da praça Paiva Couceiro
- 350m da Escola Básica Arq. Victor Palla
- 550m da Escola Básica Nuno Gonçalves
- 550m do supermercado Continente Bom Dia General Roçadas
- 800m do Miradouro da Penha de França
- 1km dos Metros Arroios e Anjos

Não perca esta oportunidade. Marque já a sua visita!
Geral
GeraisRés do chão:Sim
GeraisBalneários:Sim
GeraisRefeitório:Sim
GeraisVentilação forçada:Sim
GeraisNº de Casas de Banho:3
GeraisDespensa:Sim
VistasCidade:Sim
VistasJardins:Sim
Quarto de BanhoPróprio:Sim
Quarto de BanhoTotalmente equipado:Sim
Luz NaturalMuito Iluminado:Sim
CozinhaPlaca:Sim
CozinhaForno:Sim
CozinhaMicro-ondas:Sim
CozinhaFrigorífico:Sim

Este imóvel não tem áreas definidas.